TS 5000 RFS 3-6

Повний комплект TS 5000 RFS * Зачинювач верхнього розташування з шиною ковзання EN 3–6 з електричною функцією вільного ходу та блоком управління з датчиком диму

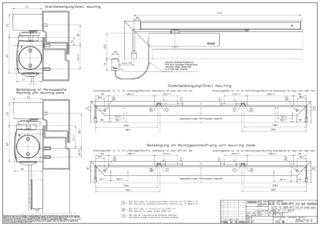
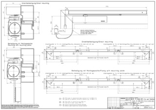
Зачинювач дверей TS 5000 RFS 3-6 Зачинювач верхнього розташування з шиною ковзання для одностулкових дверей з електричною функцією вільного ходу і блоком управління з датчиком диму, з вбудованим блоком управління датчиком диму, сигнал якого в разі пожежі автоматично закриває двері.
  • Плавне регулювання сили закривання спереду
  • Візуальна індикація величини сили закривання забезпечує належне налаштування
  • Швидкість зачинення регулюється спереду через клапан
  • Кінцеве дотискання регулюється спереду через клапан
  • Електрична функція вільного ходу
  • Зачинювач для дверей, що відкриваються вправо та вліво
Показати більше
  • Блок живлення для напруги живлення 230 В
  • Датчик диму із супроводом порогу тривоги, індикацією забруднення та непомітною клавішою розблокування для тестування
  • Можливість підключення додаткових датчиків диму
  • Можливе регулювання по висоті +/- 2 мм
Наші контакти

Сфери застосування

  • Протипожежні та димозахисні двері
  • Право- та лівосторонні навісні розпашні двері
  • Навісні розпашні двері із шириною стулки до 1 400 мм
  • Монтаж на дверному полотні з боку, де розташовані дверні петлі
  • Системи фіксації з убудованим фіксатором із функцією вільного ходу
  • Безбар’єрні проходи відповідно до вимог DIN 18040

Технічні характеристики продукту

Повний комплект TS 5000 RFS
Сила закривання згідно з EN 1154 EN 3 - 6
Ширина стулки (макс.) 1400 mm
Вид монтажу Монтаж на дверному полотні з боку, де розташовані дверні петлі
Кут відкриття (макс.) 180 °
Однакова конструкція DIN зліва та DIN справа Так
Напруга живлення 230 V AC
Вхідна напруга 230 В змінного струму
Частота напруги живлення 50/60 Hz
Тривалість включення 100 %
Вид захисту IP20
Відповідність стандартам EN 1154:1996/A1:2002/AC:2006, EN 1155
Допуски Загальний допуск будівельного контролю німецького інституту будівельної техніки у якості пристроїв фіксації
Придатність протипожежних дверей Так
Монтажна панель зі схемою розташування отворів згідно з вимогами EN 1154 Так
Довжина 327 mm
Ширина 47 mm
Висота 60 mm
Область вільного ходу 85 ° - 160 °
Регульована сила закривання Так, плавно (безступінчасто)
Регульована швидкість зачинення Так
Регульоване кінцеве дотискання Так, через клапан
Інтегроване демпфування відкриття Ні
Позиція регулювання сили закривання Передній
Візуальна індикація сили закривання Так
Клапан захисту від перевантаження Так
Термостабільні клапани Так
Фіксатор Електричний, для забезпечення функції вільного ходу
Інтегрований датчик диму Так
Індикація забруднення Так
Супровід порогу тривоги Так
Інтегрований блок живлення Так
Пружний обмежувач відкривання Так

Завантаження

Варіанти та аксесуари

Наші контакти

GEZE Central +38-044-501-22-25 Architektenhotline +49-7152-203-112 Mo - Do: 9.00 - 16.00 Uhr / Fr: 9.00 - 15.00 Uhr Service-Hotline +49-1802-923392 (0,06 € / Anruf aus dem Festnetz, Mobilfunk max. 0,42 €)