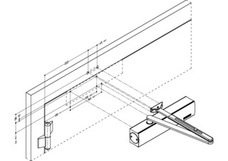
Важільна тяга одностулкова

TS 4000 S * Дверний замикач з важільною тягою для одностулкових дверей з шириною стулки до 1 400 мм з затримкою закривання

Зачинювач дверей TS 4000 Зачинювач верхнього розташування з зубчастим приводом і важільною тягою, Сила закривання 1-6 і 5-7 згідно
  • Плавне регулювання сили закривання EN2-6
  • Можливе використання для дверей з петлями праворуч та ліворуч без перемикання
  • Налаштування затримки закриття для пристосування швидкості зачинення дверей до кута відкриття близько 80°
  • Гідравлічний кінцевий дохлоп, що прискорює рух дверей незадовго до досягнення закритого стану
  • Можливе індивідуальне налаштування швидкості зачинення
  • Вбудоване демпфування відкриття, загальмовує різко відчинені двері
Показати більше
  • Візуальна індикація сили закривання для полегшення контролю під час регулювання
  • Усі функції регулюються спереду
Наші контакти

Сфери застосування

  • Протипожежні та димозахисні двері
  • Право- та лівосторонні навісні розпашні двері
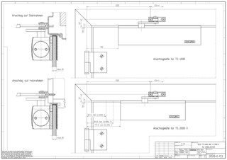
  • Навісні розпашні двері із шириною стулки до 1 400 мм
  • Монтаж на дверному полотні з боку, де розташовані дверні петлі
  • Верхній монтаж з боку навпроти дверних петель

Технічні характеристики продукту

TS 4000 S
Сила закривання згідно з EN 1154 EN 2 - 6
Безбар’єрний відповідно до DIN 18040 для стулок шириною (макс.), мм 1100 mm
Ширина стулки (макс.) 1400 mm
Вид монтажу Монтаж на дверному полотні з боку, де розташовані дверні петлі
Кут відкриття (макс.) 180 °
Придатність протипожежних дверей Так
Регульована сила закривання Так, плавно (безступінчасто)
Регульована швидкість зачинення Так
Регульоване кінцеве дотискання Так, через клапан
Інтегроване демпфування відкриття Так, регулюється за допомогою гідравліки
Інтегрована затримка закривання Так
Позиція регулювання сили закривання Передній
Візуальна індикація сили закривання Так
Фіксатор Опціонально

Завантаження

Варіанти та аксесуари

Наші контакти

GEZE Central +38-044-501-22-25 Architektenhotline +49-7152-203-112 Mo - Do: 9.00 - 16.00 Uhr / Fr: 9.00 - 15.00 Uhr Service-Hotline +49-1802-923392 (0,06 € / Anruf aus dem Festnetz, Mobilfunk max. 0,42 €)