Boxer P * Вбудований зачинювач для одностулкових маятникових дверей із шириною стулки до 1100 мм
- Плавне регулювання сили закривання EN2-4
- Можливе використання для дверей з петлями праворуч та ліворуч без перемикання
- Зачинювач вбудовано у дверне полотно або коробку та відповідає найвищім вимогам до дизайну
- Вбудоване демпфування відкриття, загальмовує різко відчинені двері
- Гідравлічний кінцевий дохлоп, що прискорює рух дверей незадовго до досягнення закритого стану
- Можливе індивідуальне налаштування швидкості зачинення
Сфери застосування
- Протипожежні та димозахисні двері, вимагається сертифікат відповідності
- Право- та лівосторонні маятникові двері
- Маятникові двері з шириною стулки до 1100 мм та вагою 80 кг
- Для дверних полотен товщиною від 40 мм
- Інтегрований монтаж
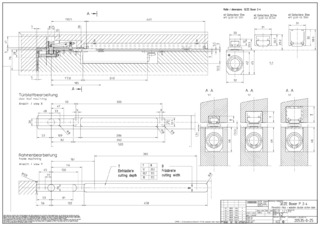
Технічні характеристики продукту
| Boxer P | |
| Сила закривання згідно з EN 1154 | EN 2 - 4 |
| Ширина стулки (макс.) | 1100 mm |
| Вага стулки (макс.) | 120 kg |
| Вид монтажу | Приховане розташування |
| Кут відкриття (макс.) | 120 ° |
| Регульована сила закривання | Так, плавно (безступінчасто) |
| Регульована швидкість зачинення | Так |
| Регульоване кінцеве дотискання | Так, через клапан |
| Інтегроване демпфування відкриття | Так, регулюється за допомогою гідравліки |
| Позиція регулювання сили закривання | Зверху |
| Фіксатор | Опціонально |
Завантаження
LABELLING OBLIGATION: © GEZE GmbH
Варіанти та аксесуари
* Повідомлення про відображені продукти
Вказані вище продукти можуть відрізнятися за формою, типом, характеристиками та функціями (конструкція, розміри, доступність, дозволи, стандарти і т. д.) залежно від країни. З будь-яких питань звертайтесь до контактної особи GEZE або надішліть нам E-Mail .