T-Stop guide rail * For opening restriction or hold-open of doors without door closer
- Holds doors without door closer open, not self-closing
- Can be used for right and left hand doors without conversion
- The door opening angle is limited and a door stopper is usually no longer required
- Door area is more attractive without door stopper, no tripping hazards or dirty corners
- Crushing between the door leaf and floor mounted door stopper is avoided
Application Areas
- Right and left single-action doors
- Opening restrictor for single-action doors without door closer
- Door systems without smoke and fire protection requirements
- For combination of an automatic swing door drive with a TS 5000 on double leaf door systems
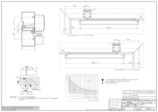
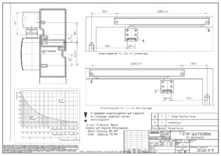
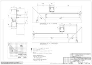
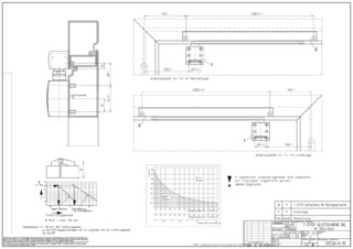
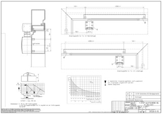
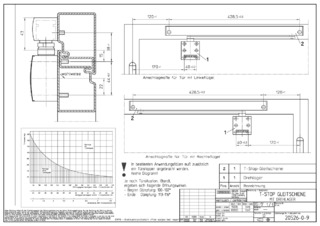
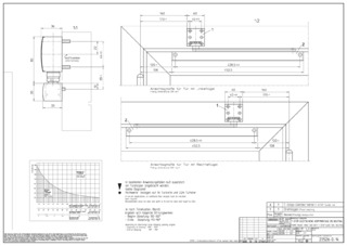
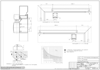
Technical data
| T-Stop guide rail | |
| Type of installation | Door leaf installation hinge side, Transom installation opposite hinge side, Transom installation hinge side, Door leaf installation opposite hinge side |
| Hold-open function | Optional |
Downloads
LABELLING OBLIGATION: © GEZE GmbH
Variants & Accessories
* Notice about the products displayed
The products mentioned above may vary in form, type, characteristics and function (design, dimensions, availability, approvals, standards etc.) depending on the country. For questions please contact your GEZE contact person or send us an E-Mail .