TS 5000 EFS 3-6

TS 5000 EFS complete package * Overhead door closer with guide rail EN 3-6 with electric free swing function

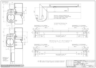
TS 5000 EFS 3-6 KM BS Gleitschienentürschließer für 1-flügelige Türen bis 1400 mm Flügelbreite mit elektrischer Freilauffunktion
  • Closing force can be variably adjusted from the front
  • Visual closing force display ensures correct setting
  • Closing seed can be adjusted from the front via valve
  • Latching action can be adjusted from the front via valve
  • Electric free swing function
  • Door closer, can be used for right and left hand doors
Show more
  • Supply voltage 24 V DC
Contact us

Application Areas

  • Fire and smoke protection doors
  • Right and left single-action doors
  • Single-action doors up to 1400 mm leaf width
  • Door leaf installation hinge side
  • Hold-open systems with integrated hold-open function with free swing
  • Barrier-free access in accordance with DIN 18040

Technical data

TS 5000 EFS complete package
Closing force in accordance with EN 1154 EN 3 - 6
Leaf width (max.) 1400 mm
Type of installation Door leaf installation hinge side
Opening angle (max.) 180 °
Identical design for DIN left and DIN right Yes
Input voltage 24 V DC
Electrical power consumption 1 W
Duty rating 100 %
Residual ripple 20 %
IP rating IP20
Standard conformity EN 1154:1996/A1:2002/AC:2006, EN 1155
Suitability for fire protection doors Yes
Mounting plate with hole pattern in accordance with EN 1154 supplement Yes
Length 327 mm
Width 47 mm
Height 60 mm
Free swing area 85 ° - 160 °
Closing force adjustable Yes, stepless
Adjustable closing speed Yes
Latching action adjustable Yes, via valve
Back check integrated No
Position of closing force adjustment Front
Visual closing force display Yes
Safety valve againts overload Yes
Thermo-control valves Yes
opening restrictor upgradable Yes
Hold-open function Electrically, for free swing function

Downloads

Variants & Accessories

Contact

GEZE Central +48-224-404-440 GEZE Service +48-224-404-440-450 Hotline for architects +48-691-466-433