TSA 325 NT * Automatic revolving door drive for three- or four-leaf doors with large area of application
- Very quiet running, low-wear drive solution with a canopy height of at least 200 mm
- Precise closing of the door leaves with the side walls
- Effective insulation effect against draughts, weather and noise
- Adjustable automatic speed setting, in line with the number of people passing through
- Servo function for motorized support when manually opening the door
- Manual operation of the door possible, e.g. to carry out cleaning work
- Can be networked, and integrated into the building automation via open standard (BACnet)
- Independent error recognition and recording
- Freely configurable inputs and outputs for different functions
- Integrated, rechargeable battery for emergency opening in case of safety-relevant faults, such as power failure
Application Areas
- Three- and four-leaf door systems
- Interior and exterior doors with high access frequency
- Representative building entrances with large incidence of light
- Façades with slim mullion-transom constructions
- Glass façades with the highest design standards
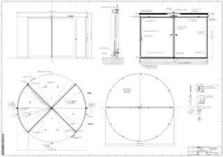
- Inner diameter ranging from 1800 to 3600 mm possible
- Suitable profile systems are fine-framed profile systems with ISO and mono glass
Installation situations in reference objects and videos
Technical data
| TSA 325 NT | |
| Manual operation | Yes |
| With speed limiter (optional) | Yes |
| With positioning device (optional) | Yes |
| Fully automatic operation | Yes |
| Servo function | Yes |
| Suitability for escape and rescue routes | No |
| Break-out function (BO) | No |
| Inner diameter (min.) | 1800 mm |
| Inner diameter (max.) | 3600 mm |
| For 3-leaf door systems | Yes |
| For 4-leaf door systems | Yes |
| Clear passage height | 3000 mm |
| Canopy height (min.) | 200 mm |
| Side elements version | 10 mm LSG, 22 mm panel lining, 34 mm smooth-surface panel, Special glass on request |
| Version of roof structure | As dust protection roof with wood covering, optical sheet metal covering, waterproof roof with waterspout |
| Illumination | with roof variant |
| Floor covering | Entrance mat, Entrance mat, according to the customer’s request |
| Hot-air curtain system | Electric air curtain, hot water air curtain, possible, depends on the ceiling construction |
| Night-time closer layout | Inside, Outside |
| Night-time closer type | Manual, Automatic |
| Night-time closer design | 10 mm LSG, 22 mm ISO glass, 22 mm panel lining, Special glass on request |
| Lock | Manual, Rod, electromechanical |
| Door handles horizontal or vertical | Yes |
| Floor ring | Yes |
| Underfloor operator | Yes |
| Push pad | Yes |
| Standard conformity | DIN 18650, EN 16005 |
Downloads
LABELLING OBLIGATION: © Sigrid Rauchdobler / GEZE GmbH
LABELLING OBLIGATION: © Nicolas Tohme / GEZE GmbH
LABELLING OBLIGATION: © GEZE GmbH
LABELLING OBLIGATION: © Lothar Wels / GEZE GmbH
LABELLING OBLIGATION: © Fotografia Maciej Lulko / GEZE GmbH
LABELLING OBLIGATION: © Robert Les / GEZE GmbH
LABELLING OBLIGATION: © Tarık Kaan Muşlu / GEZE GmbH
LABELLING OBLIGATION: © Robert Les / GEZE GmbH
LABELLING OBLIGATION: © Lothar Wels / GEZE GmbH
LABELLING OBLIGATION: © Tarık Kaan Muşlu / GEZE GmbH
LABELLING OBLIGATION: © Morten Bak / GEZE GmbH
LABELLING OBLIGATION: © Nikolaus Grünwald / GEZE GmbH
LABELLING OBLIGATION: © Truls Busch-Christensen / GEZE GmbH
LABELLING OBLIGATION: © Laurent Pardon / GEZE GmbH
LABELLING OBLIGATION: © Nikolaus Grünwald / GEZE GmbH
LABELLING OBLIGATION: © Nikolaus Grünwald / GEZE GmbH
LABELLING OBLIGATION: © Nicolas Tohme / GEZE GmbH
LABELLING OBLIGATION: © Nicolas Tohme / GEZE GmbH
LABELLING OBLIGATION: © Nicolas Tohme / GEZE GmbH
Variants & Accessories
* Notice about the products displayed
The products mentioned above may vary in form, type, characteristics and function (design, dimensions, availability, approvals, standards etc.) depending on the country. For questions please contact your GEZE contact person or send us an E-Mail .